Chuyên mục Nhà đẹp thân mến!
Tôi có một mảnh đất với diện tích 72m2 (4,5m x 16m) với diện tích ở chỉ còn (4,1x16m). Tôi muốn xây nhà 2 tầng 1 lửng theo phong cách Pháp hiện đại, thoáng mát với tone màu chủ đạo là xanh lá. Rất mong được kiến trúc sư tư vấn. Chân thành cảm ơn!
Kiến trúc sư tư vấn:
Dựa theo những thông tin mà bạn cung cấp về phong cách thiết kế, màu sắc và nhu cầu sử dụng của gia đình, chúng tôi xin đưa ra phương án mặt bằng tư vấn thiết kế như sau :
![]() |
|
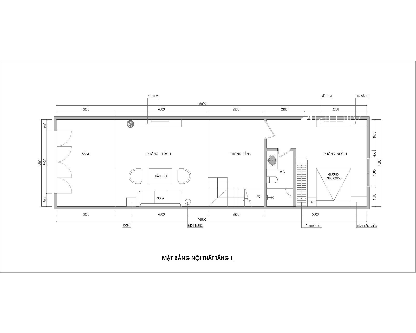
Mặt bằng tư vấn tầng 1. |
![]() |
|
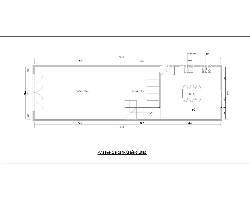
Mặt bằng tư vấn tầng lửng. |
![]() |
|
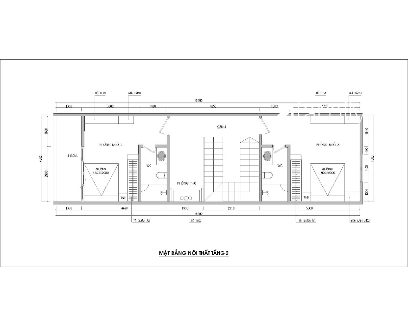
Mặt bằng tư vấn tầng 2. |
Ngôi nhà được xây dựng 2 tầng và một gác lửng, mặt bằng tầng 1 được bố trí khu vực đầu tiên là khu vực sảnh là không gia để xe cho gia đình. Tiếp đến là không gian phòng khách, được thiết kế với phong cách tân cổ điển, gam màu chủ đạo là màu xanh lá cây tươi mới, màu xanh trong phòng thể hiện thông qua những chi tiết bức tường, cây xanh. Phòng khách nhà bạn sẽ trở nên sinh động, mát mẻ và ấn tượng hơn rất nhiều.
![]() |
|
Không gian phòng khách với gam màu chủ đạo là màu xanh lá cây. |
![]() |
|
Kệ ti vi phong cách tân cổ điển. |
Cầu thang kết nối các tầng được bố trí ở giữa nhà. KTS tận dụng gầm cầu thang để bố trí một phòng vệ sinh nhỏ phục vụ nhu cầu sinh hoạt dưới tầng 1. Một phòng ngủ được bố trí nằm ở cuối nhà, có cửa sổ mở ra phía sau để lấy sáng.
![]() |
|
Phòng vệ sinh nhỏ dưới gầm cầu thang. |
![]() |
|
Không gian phòng ngủ được thiết kế trẻ trung. |
Đi lên tầng lửng là khu vực phòng bếp kết hợp phòng ăn được thiết kế có cửa sổ mở ra ngoài để đẩy mùi thức ăn không ám vào nhà.
![]() |
|
Tủ bếp bắt mắt với gam màu xanh lá. |
![]() |
|
Bàn ăn mặt đá và bộ ghế đệm nỉ màu xanh lá tôn vẻ sang trọng của không gian bếp. |
Khu vực tầng 2: Gồm phòng thờ, 2 phòng ngủ, 2 phòng vệ sinh. Các phòng ngủ đều được bố trí vệ sinh khép kín. Phòng ngủ phía bên ngoài có cửa kính lớn ngăn phòng với logia để đón sáng từ bên ngoài, tạo cảm giác căn phòng luôn rộng rãi, thoáng đãng. Phía bên trong cũng là một phòng ngủ được thiết kế đủ rộng, có cửa sổ mở ra ngoài để lưu thông không khí trong phòng.
![]() |
|
Không gian phòng ngủ bên ngoài được thiết kế sang trọng lấy sáng trực tiếp hệ cửa kính lớn. |
![]() |
|
Không gian phòng ngủ bên trong với điểm nhấn mảng tường xanh lá. |
![]() |
|
Không gian WC khép kín sang trọng, đầy đủ tiện nghi. |
Đặc biệt khu vực phòng thờ được đặt vị trí trang trọng giữa không gian tầng 2, được bài trí theo phong cách trang trọng, ấm cúng.
![]() |
|
Tủ thờ được thiết kế trang trọng, màu sắc ấm cúng. |

Hy vọng với phương án bố trí của Nhà đẹp sẽ đáp ứng được tiện nghi cũng như nhu cầu sinh hoạt của bạn và gia đình.
Theo Báo Tổ quốc

Bài trí phòng khách theo cách này để vận may ào ào
Phòng khách được xem là bộ mặt của cả căn nhà. Do đó, việc bài trí cần phải đảm bảo tính thẩm mỹ và phù hợp phong thủy để đón tài lộc cho gia chủ.












