Xin chào chuyên mục Nhà đẹp
Tôi có 1 mảnh đất 38,5m² (dài 10m và rộng 3,85m). Mong chuyên mục tư vấn thiết kế nhà cho tôi với tiêu chí:
Tầng 1: nơi để xe nhỏ, phòng khách, phòng bếp - ăn, 1 nhà vệ sinh. Tầng 2: 2 phòng ngủ, 1 phòng tắm. Tầng thượng: khu phơi quần áo và có thể kết hợp nơi đặt bàn thờ nhỏ và tiện lợi.
Tổng thể khu đất:
Nhà hướng tây, đối diện là nhà hàng xóm 3 tầng, đường đi chung 2,5m. Hướng nam là nhà hàng xóm 3 tầng đã xây. Hướng bắc là mảnh đất liền kề đã có người mua nhưng chưa xây. Hướng Đông là 1 nhà cấp 4.
Tôi mệnh Kim. Vì thế mong chuyên mục tư vấn thiết kế cho tôi để có ngôi nhà hợp lý, thoáng mát và phù hợp với phong thủy.
Tôi xin chân thành cảm ơn!
Vũ Đức Thiện
Kiến trúc sư tư vấn:
Dựa theo những thông tin mà bạn cung cấp và yêu cầu thiết kế cho ngôi nhà, chúng tôi xin đưa ra phương án mặt bằng tư vấn thiết kế để bạn tham khảo.

Mặt bằng tư vấn thiết kế tầng 1

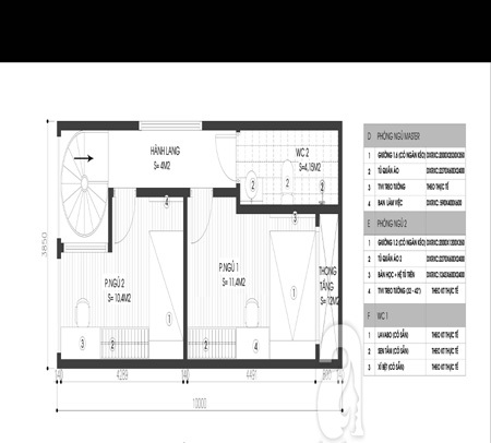
Mặt bằng tư vấn thiết kế tầng 2

Mặt bằng tư vấn thiết kế tầng 3
Mảnh đất của bạn có ưu điểm là diện tích khá vuông vắn và đặc biệt người mệnh kim hợp nhất khi nhà quay về hướng bắc, vì vậy để thiết kế ra một không gian thoải mái, thoáng mát và tiện nghi không khó. Theo yêu cầu và mong muốn của bạn đề ra thì chúng tôi đưa ra phương án tư vấn thiết kế như sau:
Để khoảng sân nhỏ trước nhà và có bậc thang đi lên. Chúng tôi bố trí cầu thang ở trước cửa nhà và để khoảng thông tầng từ tầng một đến tầng ba để lấy ánh sáng cho cả nhà. Ở tầng một là phòng sinh hoạt chung gồm: phòng khách, phòng ăn, bếp và nhà vệ sinh. Đi lên tầng hai là hai phòng ngủ và nhà vệ sinh. Cuối cùng là tầng ba chúng tôi bố trí phòng thờ và sân phơi kết hợp với tiểu cảnh.
Bước vào căn nhà là không gian sinh hoạt chung với phòng khách rộng rãi kết hợp bộ ghế sofa hiện áp tường tiết kiệm diện tích. Nối liền với phòng khách là không gian phòng ăn với gian bếp tiện nghi áp tường nối liền với kệ tivi chạy dài để tiết kiệm diện tích mà vẫn hiện đại. Cuối cùng là nhà vệ sinh đối diện với gian bếp.
Lên tầng hai cuối hành lang là nhà vệ sinh chung cho hai phòng ngủ. Phòng ngủ đầu tiên hướng ra mặt tiền là phòng ngủ của con có diện tích nhỏ hơn phòng ngủ của master. Phòng ngủ của con luôn tràn ngập ánh sáng và thoáng mát nhờ hệ cửa sổ lớn hướng ra mặt tiền và khoảng thông tầng từ cầu thang xoắn. Phòng ngủ của master cũng được thông thoáng nhờ khoảng thông tầng nhỏ trong phòng. Cả hai phòng đều có đồ dùng trong phòng rất tiện nghi và hiện đại như giường ngủ, kệ tivi treo tường, tủ quần áo và bàn học, bàn làm việc. Tầng trên cùng là phòng thờ và sân phơi kết hợp với tiểu cảnh, bạn có trồng nhiểu cây xanh nhỏ xinh để thể thư giãn nghỉ ngơi.
Vì gia chủ thuộc mệnh kim, theo nguyên lí tương sinh trong ngũ hành, màu sắc có lợi nhất cho người mệnh Kim là màu vàng, kế đó là các màu phái sinh như vàng nhạt, vàng cam. Nếu sử dụng các gam màu này làm màu chủ đạo trong nhà, về lâu dài sẽ có lợi cho cuộc sống và sự nghiệp của người mệnh Kim.
Bên cạnh đó, màu sắc cơ bản của mệnh Kim là màu trắng nên người mệnh này có thể sử dụng nó làm gam màu chính cho các vật dụng trong gia đình. Ngoài ra, để có một cái nhìn tươi mới, không gian màu trắng nên để ở phòng nghỉ và phòng tắm, nơi sẽ khiến bạn thực sự có cảm giác thoải mái và thư giãn.
Người mệnh Kim nên chọn các vật liệu trang trí nhà bằng kim loại như thép, nhôm, vàng, bạc… Đặc tính kim của chúng có thể thúc đẩy sự lưu thông không khí, vì vậy khá hữu dụng với các vị trí kín gió trong nhà. Thủy tinh hay gương có độ láng bóng như kim loại nên cũng có tính chất như kim, do vậy ngoài là đồ vật hữu ích và vật trang trí, chúng cũng hỗ trợ tốt cho người mệnh Kim.
Cách bố trí đồ nội thất như vậy sẽ giúp cho không gian sống thêm tiện nghi và trở nên tốt hơn sau khi nhà bạn sinh em bé. Ngoài ra bạn cũng không nên trang trí rườm ra, điều đó sẽ làm cho căn phòng thêm chật chội. Bạn có thể sử dụng giấy dán tường hay những đồ decor độc đáo và bắt mắt, nó sẽ làm điểm nhấn giúp cho căn nhà của bạn thú vị và hấp dẫn hơn.
Hy vọng với phương án tư vấn thiết kế này sẽ đáp ứng được tiện nghi cũng như nhu cầu sinh hoạt của bạn và gia đình. Sau đây là một số hình ảnh tham khảo giúp bạn hình dung không gian sống của mình được tốt hơn.

Không gian phòng khách với tone màu vàng mang tài lộc đến cho người mệnh kim.

Hệ tủ bếp áp tường đầy tiện nghi.

Bộ bàn ăn bằng gỗ cổ điển mà hiện đại.

Phòng ngủ master với tone màu trắng hợp với phong thủy.

Phòng ngủ con tràn ngập ánh sáng từ cửa sổ với tone màu nhã nhặn.

Góc làm việc và hệ tủ quần áo âm tường đơn giản mà tiện nghi.

Nhà vệ sinh sạch sẽ với tone màu sáng.

Sân thượng kết hợp với tiểu cảnh làm nơi nghỉ ngơi thư giãn.
Theo Trí Thức Trẻ