Dù có mặt bằng có nhược điểm dài hẹp, nhờ ứng dụng nội thất thông minh, căn hộ vẫn vừa vặn cho 5 thành viên gia đình sinh hoạt thoải mái.
![]() |
Căn hộ hẹp nhưng có diện tích đến 93m2.
![]() |
Bếp và phòng khách là không gian sinh hoạt chính của gia đình.
![]() |
Căn bếp được thiết kế tối giản khiến không gian không bị chật mắt.
![]() |
Điểm đặc biệt là hành lang dài dẫn tới phòng ngủ chính.
![]() |
Dọc hành lang là cửa vào những phòng ngủ nhỏ và công trình phụ.
![]() |
Phòng ngủ chính dành cho bố mẹ với tủ quần áo lớn cùng tông và khối nội thất thông minh dọc hành lang.
![]() |
Tông chính của phòng ngủ này là màu trắng.
![]() |
Màu trắng khiến căn phòng rộng hơn so với diện tích thực.
![]() |
Các phòng ngủ của thành viên nhỏ tuổi trong gia đình đều có đủ giường, tủ đồ và bàn làm việc.
![]() |
Một phòng sẽ sử dụng tầng hai của giường, trong khi phòng còn lại sử dụng giường tầng một.
![]() |
Thiết kế độc đáo giúp tiết kiệm không gian nhưng vẫn đảm bảo sự riêng tư.
![]() |
Mỗi giường đều có trang bị TV riêng.
![]() |
Các phòng ngủ sở hữu công trình phụ liền kề.
![]() |
Căn hộ có hai công trình phụ như thế này.
![]() |
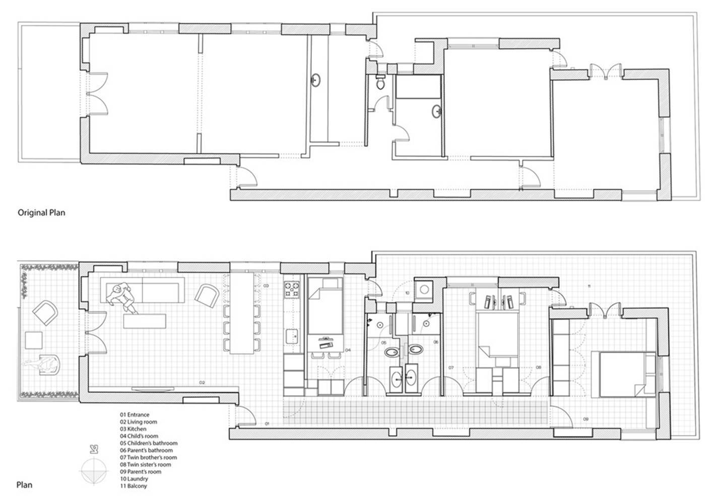
Mặt bằng căn hộ 93m2 trước và sau khi cải tạo.
Theo Zing

12 ý tưởng thiết kế phòng tắm nhỏ, hiện đại
Những mẫu phòng tắm hiện đại, được thiết kế tinh tế sẽ là sự tham khảo hữu ích nếu bạn đang muốn thiết kế lại phòng tắm của gia đình.

Nội thất phòng ngủ màu xanh đầy ấn tượng
Nếu bạn muốn có được cảm giác dễ chịu tại chính nơi nghỉ ngơi của mình, lựa chọn nội thất phòng ngủ màu xanh là quyết định sáng suốt.

Cách trang hoàng phòng ngủ hợp phong thủy để hâm nóng hạnh phúc vợ chồng
Nếu đã thử qua nhiều phương pháp mà không thành công, một chút 'đổi gió' trong phong thủy phòng ngủ sẽ là lựa chọn hoàn hảo để hâm nóng tình cảm của bạn và người ấy.














