Ngôi nhà ống này được thiết kế dành riêng cho một gia đình trẻ, tọa lạc tại khu đô thị mới Văn Phú, Hà Nội, đã được xây thô và hoàn thiện mặt ngoài trước đó. Tuy nhiên, không giống như bao thiết kế nhàm chán, thiếu ánh sáng tự nhiên và không gian sinh hoạt của hàng ngàn ngôi nhà khác như ngày nay, gia chủ lại muốn đem đến một luồng gió mới cho tổ ấm của họ. Một ngôi nhà có thể thể hiện phần nào sở thích và phong cách của chủ nhà.
Theo yêu cầu của gia chủ, mảnh đất có kích thước 4,5 x 20 mét, “mỏng” và dài với đầy đủ phòng tiện nghi và không gian sinh hoạt chung rộng lớn đã đặt ra nhiều thách thức cho các nhà thiết kế. Nhờ sự giúp đỡ của kiến trúc sư Đào Thanh Hưng và cộng sự, ngôi nhà đã khoác lên mình một bộ mặt, sức sống hoàn toàn mới lạ.


Lối vào ngôi nhà và gara rộng rãi (đủ chỗ cho 2 xe ô tô) luôn tràn ngập ánh sáng, mang lại cảm giác tươi mới ngay từ khi mới bước vào.
Với thiết kế đơn giản nhưng vô cùng độc đáo: “Chính các lối đi sẽ tạo ra không gian và thực hiện chức năng của nó”, các kiến trúc sư khởi đầu bằng việc thay đổi vị trí của cầu thang từ trung tâm chạy dọc theo một bên của tường nhà. Cầu thang và hành lang được thiết kế không chỉ đơn thuần là một con đường buồn tẻ và đơn điệu mà là những không gian liên tục, cứ tiếp nối nhau, cuối cùng tạo nên một thể thống nhất liền mạch và vô cùng độc đáo.

Nội thất đa số làm bằng gỗ, tạo nên một không gian sang trọng mà không kém phần ấm cúng cho căn bếp bên cạnh các bức tường bê tông lạnh lẽo.

Phòng khách hiện đại, rộng rãi thích hợp cho gia đình quây quần bên nhau, cùng trò chuyện, giải trí vào mỗi tối.
Bên cạnh việc di chuyển cầu thang sang vị trí mới, những ô cửa sổ lớn cũng như các khoảng trống cho ngôi nhà cũng được các kiến trúc sư đặt lên hàng đầu nhằm tận dụng một cách tối đa luồng gió trời mát mẻ và ánh sáng tự nhiên. Đặc biệt, giếng trời ở trung tâm ngôi nhà được tạo ra để mang nguồn ánh sáng quý giá này đến với các hành lang và tất cả các phòng mà không có cửa sổ mở ra bên ngoài.


Sự kết hợp độc đáo giữa cầu thang gỗ và hành lang bằng kính trong suốt cứ tiếp nối nhau, trở thành một không gian sống thoáng đãng, sáng sủa.
Ngoài ra, nó còn có nhiệm vụ như một trục chính, kết nối chặt chẽ 4 tầng nhà lại với nhau theo chiều dọc. "Ngôi nhà này xứng đáng là một trong những thiết kế có tính ứng dụng cao cho những thành thị sầm uất, nhộn nhịp, nơi “đất chật, người đông” như hiện nay của Việt Nam. - trang Arc của Mỹ đưa ra lời đánh giá về mẫu thiết kế nhà ống này.


Giếng trời ở trung tâm ngôi nhà được tạo ra để mang ánh sáng tự nhiên đến khắp mọi nơi.

Tầng lớn nhất, bao gồm phòng khách có chiều cao gấp đôi, bao quanh bởi cầu thang mở, giếng trời và những khung cửa sổ hướng ra thành phố sầm uất.

Phòng tắm sử dụng gam màu trung tính mang đến cảm giác thư thái và sang trọng như đang ở trong một khách sạn 5 sao.
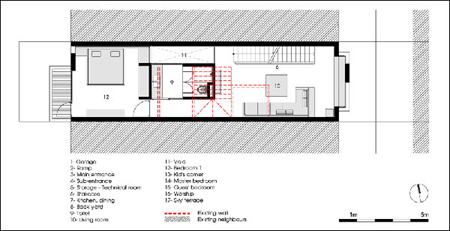
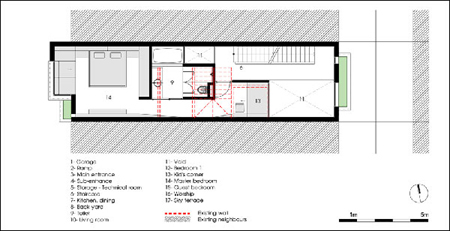
Sơ đồ mặt cắt ngôi nhà:

Tầng trệt

Tầng 1

Tầng 2

Tầng 3

Sơ đồ mặt cắt ngôi nhà theo chiều dọc.
Theo Trí thức trẻ